Trong thiết kế quán cafe, bản vẽ là thứ không thể thiếu giúp chủ đầu tư hình dung được không gian và sắp xếp công năng vật dụng một cách khoa học. Nhờ có bản vẽ thiết kế, mọi chi tiết từ lối đi, chỗ ngồi, quầy bar, bàn ghế, hay WC đều được thể hiện rõ ràng, đảm bảo thuận tiện cho quá trình thi công và tính thẩm mỹ cho quán. Bài viết dưới đây H3 Group sẽ giới thiệu đến bạn các bản vẽ thiết kế quán cafe để bạn có thể tham khảo trực quan và áp dụng vào ý tưởng thực tế của mình nhé.
1. 5 loại bản vẽ “bắt buộc” phải có khi thiết kế quán cafe
1.1. Mặt bằng (Layout Plan)
Đây là bản vẽ thể hiện tổng quan cách bố trí không gian quán như quầy bar, bàn ghế, lối đi, hay WC… Nhờ vào bản vẽ mặt bằng, chủ đầu tư có thể dễ hình dung được sự thuận tiện khi di chuyển của khách hàng và sự hợp lý trong công năng nội thất.

1.2. Mặt đứng (Elevation)
Bản vẽ mô tả hình ảnh bên ngoài của quán khi nhìn trực diện từ một phía như từ mặt tiền, bên hông quán hoặc từ phía sau. Điều này giúp xác định phong cách kiến trúc, tỷ lệ cửa sổ, cửa ra vào, biển hiệu và cách quán xuất hiện trong mắt khách.

1.3. Mặt cắt (Section)
Đây là bản vẽ cho thấy không gian quán khi “cắt” dọc hoặc ngang của một phần công trình, từ đó thể hiện rõ chiều cao tầng, kết cấu tường, trần, hệ thống kỹ thuật. Đây là phần quan trọng để quá trình thi công chính xác, tránh sai sót.

1.4. Phối cảnh 3D (3D Perspective)
Phối cảnh 3D là bản vẽ mô phỏng không gian quán bằng hình ảnh 3 chiều chân thực nhất, giúp chủ đầu tư dễ hình dung quán cafe sau khi hoàn thiện sẽ như thế nào. Đây cũng là bản vẽ dễ hiểu cũng như thuyết phục nhất đối với những ai không chuyên quyết định đầu tư.

1.5. Bản vẽ triển khai (Shop Drawing)
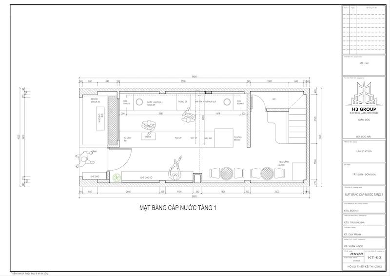
Đây là bản vẽ chi tiết dùng trực tiếp cho quá trình thi công, chi tiết từng hạng mục như kích thước quầy bar, hệ thống điện – nước, ánh sáng, vị trí bàn ghế,… Đây là cơ sở để đội ngũ thi công hoàn thiện đúng như thiết kế đã đề ra.

→ Tham khảo: Hồ sơ thiết kế quán cafe gồm những gì? (Checklist đầy đủ 2025)
2. 4 Bản vẽ thiết kế quán cafe đẹp (Layout 2D, 3D & CAD)
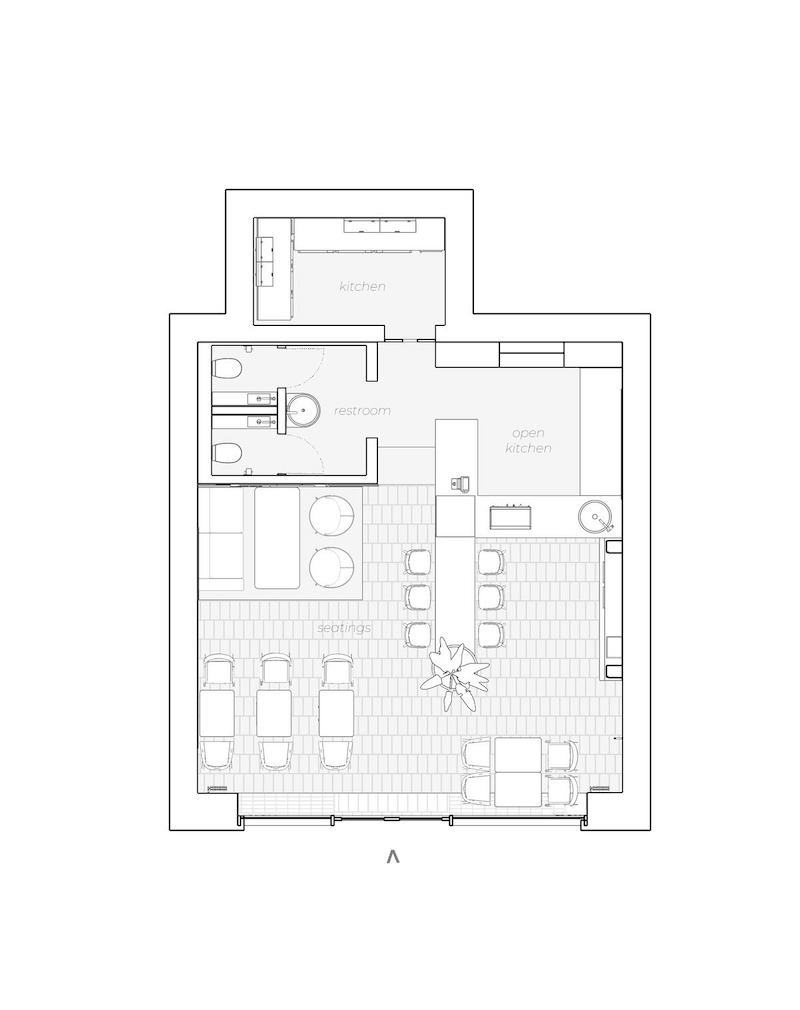
2.1. Bản vẽ mặt bằng quán cafe nhà ống (hẹp & sâu)
Đặc điểm: Đây là bản vẽ dành cho những quán có chiều ngang hẹp, chiều sâu dài, kiểu mặt bằng thường thấy ở phố, khi bố trí nên cân đối để tránh cảm giác chật chội.
Bố trí: Đặt quầy order ở ngay cửa ra vào để khách tiện order món, tiếp theo là khu bàn ghế xếp dọc hai bên theo chiều sau và để lối đi ở giữa, cuối cùng là WC đặt ở cuối quán để không ảnh hưởng đến không gian khách ngồi.
Ưu điểm: Tối ưu được diện tích nhưng vẫn bố trí quán đầy đủ công năng, khách hàng di chuyển theo trục chính rất thuận tiện và chi phí xây dựng sẽ thấp hơn so với những mô hình quán cafe khác.

2.2. Bản vẽ mặt bằng quán cafe sân vườn
Đặc điểm: Đây là bản vẽ dành cho quán có không gian rộng, thoáng, kết hợp nhiều cây xanh, tiểu cảnh và khu vực ngoài trời.
Bố trí: Chia thành các khu vực nhỏ như khu vực ngoài trời, khu vực trong nhà, lối đi kết hợp với cây cối cho khách cảm giác đang dạo trong khu vườn, và WC sẽ bố trí ở góc tách biệt nhưng vẫn dễ tìm.
Ưu điểm: Tạo cảm giác gần gũi thiên nhiên, không gian phù hợp mô hình cafe thư giãn, check-in, khách hàng được lựa chọn khu vực trong nhà hoặc ngoài trời.

2.3. Bản vẽ mặt bằng quán cafe 2 tầng
Đặc điểm: Mô hình quán cafe 2 tầng dành cho những mặt bằng tận dụng được chiều cao để mở rộng quy mô thêm tầng.
Bố trí: Tầng 1 thường đặt quầy bar ngay cửa để thuận tiện cho việc order, bên cạnh đó bàn ghế vẫn được chuẩn bị đầy đủ cho khách hàng; khu vực tầng 2 sẽ bố trí số lượng bàn ghế nhiều hơn.
Ưu điểm: Không gian 2 tầng giúp khác có nhiều sự lựa chọn chỗ ngồi, đáp ứng nhu cầu đa dạng của khách như học tập, trò chuyện hay thư giãn.

2.4. Bản vẽ mặt bằng quán cafe nhỏ (<50m²)
Đặc điểm: Sẽ là nơi có diện tích hạn chế, thường khoảng 30-50m2, phổ biến ở các khu phố đông dân cư hoặc trong ngõ nhỏ.
Bố trí: Cần tối ưu từng mét vuông, quầy bar thiết kế gọn, bàn ghế nhỏ gọn, lối đi thông thoáng, ưu tiên những chi tiết tối giản để tạo cảm giác không gian quán rộng rãi.
Ưu điểm: Chi phí đầu tư thấp phù hợp với những người mới bắt đầu kinh doanh các mô hình cafe take away hoặc phục vụ nhóm khách nhỏ, dễ quản lý và vận hành cũng như kiểm soát được chi phí.

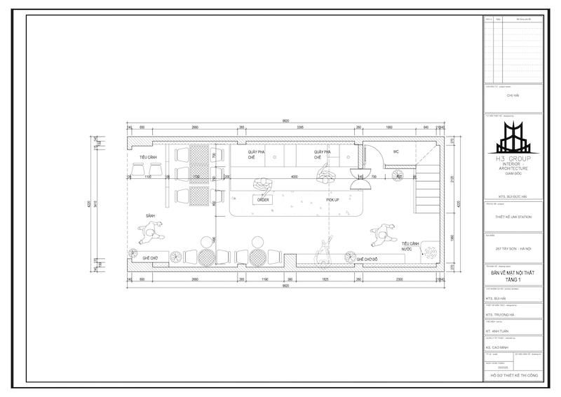
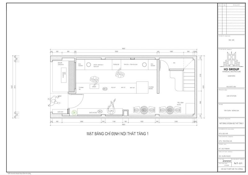
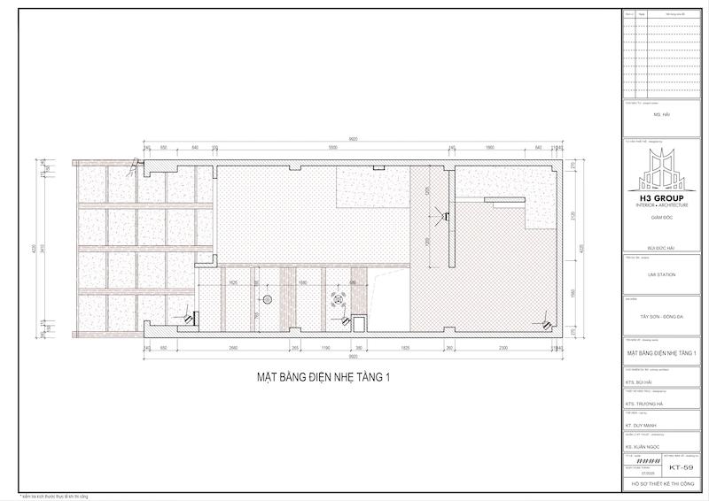
3. Case Study: Từ bản vẽ 2D ra công trình thực tế tại H3 Group
Để bạn có thể hình dung rõ về quy trình thiết kế và thi công quán cafe, dưới đây sẽ là một case study thực tế do H3 Group đã thực hiện. Từ những ý tưởng ban đầu, đội ngũ chúng tôi sẽ triển khai bản vẽ, render 3D và hoàn thiện công trình, đảm bảo được tính đồng nhất và chính xác theo từng bước đã thống nhất
Bước 1: Trình bày bản vẽ mặt bằng 2D và phân tích ý đồ thiết kế, bố trí quầy bar, bàn ghế, lối đi tối ưu được diện tích và tăng trải nghiệm cho khách hàng.

Bước 2: Trình bày hình ảnh render 3D giúp khách hình dung được không gian quán thực tế trước khi bước vào thi công, cũng như thêm màu sắc, ánh sáng, để nhất quán được ý tưởng thiết kế và thực tế.

Bước 3: Trình bày một vài bản vẽ kỹ thuật khác (mặt cắt, chi tiết…) làm cơ sở để đội thi công làm đúng chuẩn, tránh sai sót.



Bước 4: Trình bày hình ảnh thi công thực tế để cho thấy sự đồng nhất.

Trên đây là liệt kê các loại bản vẽ thiết kế quán cafe đẹp và case study thực tế, giúp bạn có thể hình dung rõ ràng từ ý tưởng ban đầu đến công trình hoàn thiện. Nếu bạn đang tìm kiếm đơn vị thiết kế và thi công quán cafe chuyên nghiệp, hãy để H3 Group – Kiến tạo không gian, nâng tầm giá trị kinh doanh cùng đồng hành. Với kinh nghiệm nhiều năm trong lĩnh vực F&B, chúng tôi cam kết mang đến giải pháp thiết kế hiệu quả, ổn định và chắc chắn, biến ý tưởng của bạn thành không gian kinh doanh ấn tượng và khác biệt.






