Chung cư 45m2 là không gian sống lý tưởng cho các gia đình nhỏ hoặc cá nhân muốn sở hữu cho riêng mình một căn hộ chung cư. Tuy nhiên, vấn đề không thể tránh là làm thế nào để tối ưu được không gian sống tiện nghi, trang trí đẹp mắt và chi phí hợp với ngân sách của gia chủ.
Trải qua nhiều dự án thực chiến các căn hộ chung cư lớn nhỏ, H3 Group sẽ đưa ra các phương án thiết kế nội thất chung cư 45m2, giải quyết cho bài toán tối ưu không gian sống và chi phí thi công trong bài viết dưới đây.
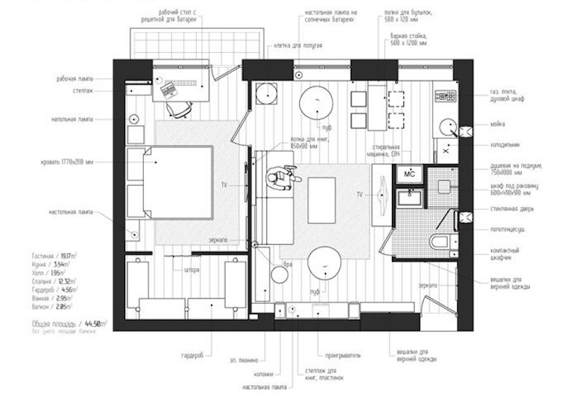
1. 2 Layout thiết kế chung cư 45m2 tiện nghi, thoáng đãng
1.1. Layout 1: Thiết kế 45m2 thành 1 phòng ngủ (1PN hoặc 1PN+1)
Thiết kế tối ưu: Với phương án 1PN (hoặc 1PN+1), phù hợp cho những người độc thân hoặc vợ chồng son muốn có cuộc sống riêng tư.
Không gian +1: Nơi có thể linh hoạt công năng theo sở thích, nhu cầu gia chủ. Bạn có thể sử dụng nơi này để bố trí thành nơi làm việc, phòng đọc sách hoặc làm giường tầng cho con cái trong tương lai.
Ưu điểm: Bằng cách gộp không gian phòng khách và phòng bếp, diện tích sẽ rất rộng và thoáng, tạo cảm giác không gian mở cho ngôi nhà của bạn.





1.2. Layout 2: Thiết kế Studio (Không vách ngăn)
Phương án thiết kế Studio dành riêng cho những người độc thân cá tính mạnh hoặc có ý định kinh doanh Homestay/Airbnb.
Đặc điểm: Phá bỏ mọi bức tường ngăn cách (trừ nhà vệ sinh), tạo ra một không gian xuyên suốt bao trọn mọi nơi trong căn nhà.
Ưu điểm: Có thể nhận ánh sáng hoàn toàn tự nhiên cho cả ngôi nhà, không gây ra cảm giác bí bách cho những căn hộ có diện tích nhỏ.





2. 5 Tuyệt chiêu “hack” diện tích cho căn hộ chung cư 45m2
Để biến 45m2 trở nên rộng thênh thang, các kiến trúc sư tại H3 Group luôn ưu tiên áp dụng 5 nguyên tắc vàng:
1 – Sử dụng màu sắc đánh lừa thị giác: Những gam màu chủ đạo sáng như trắng, kem, beige hoặc xám nhạt, có khả năng phản xạ ánh sáng tốt, giúp “ăn gian” không gian về mặt thị giác.



2 – Tận dụng chiều cao thay vì chiều rộng: Sử dụng hệ tủ kịch trần (tủ áo, tủ bếp) giúp tăng tối đa sức chứa mà không chiếm dụng diện tích mặt sàn. Giảm bớt việc bị chiếm diện tích để đặt nội thất.



3 – Nội thất thông minh (Smart Furniture): Đầu tư vào các món đồ đa năng như: sofa giường, bàn ăn gấp gọn, giường ngủ có ngăn kéo chứa đồ phía dưới.



4 – Sử dụng vách kính và gương: Gương lớn đặt ở phòng khách hoặc vách kính ngăn cách phòng ngủ giúp nhân đôi không gian và tạo chiều sâu cho căn hộ.


5 – Ánh sáng là chìa khóa: Tận dụng tối đa nguồn ánh sáng tự nhiên và hệ thống đèn led âm trần, đèn ray trượt sẽ mang lại cảm giác rộng rãi hơn một căn phòng tối tăm.


>> Xem thêm: Mẫu thiết kế phòng khách chung cư tối giản
3. Mẫu thiết kế nội thất chung cư 45m2 đẹp, hiện đại
3.1. Thiết kế nội thất chung cư 45m2 phong cách tối giản
Phong cách tối giản cho nội thất chung cư 45m2 sẽ tập trung vào phần công năng hơn phần trang trí chi tiết, dày đặt. Phong cách này được nhiều gia chủ yêu thích vì cảm giác bình yên, thoáng đãng và nhẹ nhàng mà căn nhà mang lại.



3.2. Thiết kế nội thất chung cư 45m2 phong cách hiện đại
Thiết kế theo phong cách hiện đại dùng các vật liệu như thép, gỗ công nghiệp, đá, kính với các đường nét dứt khoát, tinh giảm chi tiết cầu kì để làm tôn lên vẻ đẳng cấp của vật liệu và gu thẩm mỹ gia chủ. Xu hướng thiết kế không bao giờ lỗi thời và dễ thi công cho chung cư 45m2.



3.3. Thiết kế nội thất chung cư 45m2 phong cách Japandi (Nhật Bản + Bắc Âu)
Phong cách nội thất Japandi là sự hòa hợp hoàn hảo giữa nội thất gỗ kiểu Nhật và vẻ đẹp tinh tế, sang trọng của phong cách Bắc Âu. Thiết kế Japandi mang đến cho căn nhà vẻ đẹp lịch lãm, gần gũi với thiên nhiên hơn bao giờ hết.



Lưu ý: Với diện tích 45m2, gia chủ không nên chọn phong cách Cổ điển/ Tân cổ điển. Các chi tiết phào chỉ, hoa văn rườm rà và nội thất kích thước lớn sẽ gây cảm giác chật chội, nặng nề và rối mắt.
3.4. Thiết kế nội thất căn hộ 45m2 với 1 phòng ngủ
Thiết kế căn hộ 45m2 với 1 phòng ngủ riêng biệt cần tối ưu không gian bằng cách bài trí rõ ràng giữa phòng khách, phòng ngủ và bếp ăn. Sử dụng đồ nội thất đa năng, ví dụ kết hợp tủ quần áo âm tường và vách ngăn nhẹ giúp tạo cảm giác rộng rãi.



4. Báo giá thiết kế nội thất chung cư tại H3 Group
H3 Group thấu hiểu rằng ngân sách là mối quan tâm hàng đầu của khách hàng. Chúng tôi cung cấp dịch vụ trọn gói từ thiết kế đến thi công với chi phí tối ưu nhất. Đội ngũ KTS của H3 Group luôn sẵn sàng lắng nghe và biến những mét vuông hạn hẹp trở thành tổ ấm lý tưởng nhất.
Dưới đây là bảng báo giá thiết kế nội thất chung cư theo giá thị trường hiện nay mà khách hàng có thể tham khảo qua:
Bảng chi phí thiết kế nội thất chung cư cơ bản:
| Loại căn hộ | Đơn giá thiết kế (VNĐ/m²) | Tổng 45 m² (VNĐ) |
| Studio | 180,000 – 250,000 | ~8,000,000 – 11,000,000 |
| 1 Phòng ngủ (1PN) | 150,000 – 250,000 | ~7,000,000 – 11,000,000 |
| Căn hộ 45 m² chuẩn | 180,000 – 220,000 | ~8,000,000 – 10,000,000 |
Bảng chi phí thi công nội thất chung cư cơ bản:
| Phong cách thiết kế | Đơn giá thi công nội thất (VNĐ/m²) | Tổng 45 m² (VNĐ) |
| Hiện đại / Tối giản | ~8,000,000 – 9,500,000 | ~360,000,000 – 430,000,000 |
| Japandi / Bắc Âu / Wabi‑Sabi | ~8,000,000 – 10,000,000 | ~360,000,000 – 450,000,000 |
| Thuần cao cấp / nhiều chi tiết | >10,000,000 | >450,000,000 |
Đừng để con số 45m2 khiến bạn phải “đau đầu” khi sắp xếp mọi thứ trong căn nhà của mình. Bạn có gu, chúng tôi có sức, hãy đồng hành cùng chúng tôi để biến những mét vuông hạn hẹp thành một tổ ấm được ‘may đo’ đúng chuẩn, cam kết mang đến những giải pháp thiết kế nội thất chung cư tối ưu, giúp ‘hack’ diện tích tối đa mà vẫn giữ trọn nét thẩm mỹ cá nhân.
Nhanh chóng liên hệ đến H3 Group để được tư vấn và chăm sóc tận tình cho căn nhà của bạn sớm nhất. Với sự sáng tạo và hiểu biết sâu sắc về thiết kế, chúng tôi sẽ giúp bạn nâng tầm căn hộ nhỏ thành một ngôi nhà đậm chất của riêng mình.
Thông tin liên hệ:
- Địa chỉ: Ngõ 25 Thọ Tháp, Quận Cầu Giấy, Hà Nội
- Hotline tư vấn – báo giá: 0886.888.393
- Website: https://h3group.com.vn/





