Thiết kế mặt bằng quán cà phê là bước đầu tiên và quan trọng nhất để tạo nên một không gian vận hành hiệu quả, thẩm mỹ và mang lại trải nghiệm tốt cho khách hàng. Dù bạn đang chuẩn bị mở quán, đã có sẵn mặt bằng cần bố trí lại, hay muốn tối ưu công năng cho quán hiện tại, việc nắm rõ cách sắp xếp khu vực, luồng di chuyển, vị trí quầy bar, kho, WC… sẽ giúp tiết kiệm chi phí, tăng công suất phục vụ và tạo dấu ấn riêng cho thương hiệu.
Hãy cùng tham khảo bài viết dưới đây để khám phá những nguyên tắc, gợi ý bố trí và kinh nghiệm thiết kế mặt bằng quán cà phê khoa học, thực tế nhất!
1. Tầm quan trọng của thiết kế mặt bằng quán cafe đẹp
Một bản thiết kế mặt bằng khoa học không chỉ giúp quán cà phê vận hành hiệu quả mà còn ảnh hưởng trực tiếp đến trải nghiệm khách hàng và doanh thu. Dưới đây là những lý do cho thấy vì sao bước này đặc biệt quan trọng:
- Tối ưu hóa công năng và vận hành:
Sắp xếp hợp lý các khu vực giúp nhân viên di chuyển thuận tiện, thao tác nhanh hơn và hạn chế va chạm trong giờ cao điểm.
- Nâng cao trải nghiệm khách hàng:
Không gian được bố trí thông minh, có lối đi rõ ràng và chỗ ngồi thoải mái giúp khách cảm thấy thư giãn, dễ chịu.
- Tăng công suất phục vụ và doanh thu:
Tối ưu chỗ ngồi mà không gây chật chội, giúp phục vụ được nhiều khách hơn trong cùng một diện tích.
- Kiểm soát chi phí:
Thiết kế bài bản ngay từ đầu tránh phải sửa chữa, thay đổi tốn kém trong quá trình vận hành.
- Đảm bảo an toàn và vệ sinh:
Bố trí hợp lý khu chế biến, kho và lối thoát hiểm giúp không gian vận hành an toàn, đáp ứng tiêu chuẩn vệ sinh.

2. 6 nguyên tắc vàng khi thiết kế mặt bằng quán cà phê
2.1. Phân luồng di chuyển hiệu quả
Một quán cà phê được bố trí tốt cần có luồng di chuyển rõ ràng, hợp lý giúp không gian vận hành trơn tru, mang lại trải nghiệm thoải mái cho cả nhân viên lẫn khách hàng.
- Khách hàng: Di chuyển tự nhiên theo trình tự vào quán → order → chọn chỗ ngồi → sử dụng WC (nếu cần) → ra về.
- Nhân viên: Hoạt động theo quy trình pha chế → phục vụ → thu dọn → rửa → trở lại quầy bar hoặc kho.
Nguyên tắc quan trọng mà chủ đầu tư cần nhớ là hai luồng di chuyển không được chồng chéo để tránh va chạm, ùn tắc hoặc làm gián đoạn trải nghiệm khách hàng.

>> Xem thêm: Dự án thiết kế Moon Cafe – Cafe Sân vườn
2.2. Tối ưu không gian
Thiết kế mặt bằng quán cà phê cần tận dụng tối đa diện tích, đặc biệt với những mặt bằng nhỏ hoặc có hình dạng không vuông vức. Việc sắp xếp thông minh giúp không gian vừa thoải mái vừa linh hoạt cho nhiều mục đích sử dụng.
- Sử dụng nội thất thông minh, đa năng: Ưu tiên các loại bàn ghế có thể xếp gọn, di chuyển dễ dàng hoặc vách ngăn di động để thay đổi bố cục khi cần.
- Tận dụng các góc chết và không gian chiều cao: Biến khu vực góc hoặc tường trống thành nơi trưng bày, kệ trang trí hoặc chỗ ngồi nhỏ, giúp tăng diện tích sử dụng mà vẫn đảm bảo tính thẩm mỹ.

2.3. Đảm bảo sự cân bằng và đối xứng
Cân bằng và đối xứng là yếu tố quan trọng giúp không gian quán cà phê trở nên hài hòa, dễ chịu và cuốn hút hơn. Khi các khu vực được bố trí với tỷ lệ hợp lý từ quầy bar, khu ngồi, đến trang trí sẽ làm cho tổng thể quán toát lên sự chuyên nghiệp và mang lại cảm giác thư giãn tự nhiên cho khách hàng.

2.4. Chú trọng tầm nhìn và điểm nhấn
Trong thiết kế mặt bằng quán cà phê, tầm nhìn là yếu tố quyết định ấn tượng đầu tiên của khách. Cần tính toán hướng nhìn từ ngoài vào trong cũng như từ các vị trí ngồi, để mỗi góc đều mang lại cảm giác thu hút và dễ chịu.
Những khu vực nổi bật như quầy bar, tranh tường, tiểu cảnh hoặc khu decor đặc trưng nên được đặt ở vị trí trung tâm hoặc dễ nhìn thấy nhất, giúp không gian có chiều sâu và tạo dấu ấn thương hiệu rõ ràng.

2.5. Yếu tố ánh sáng và thông gió tự nhiên
Ánh sáng và không khí tự nhiên là “linh hồn” của một quán cà phê, giúp không gian luôn thoáng đãng và dễ chịu. Khi thiết kế mặt bằng, nên hạn chế các vách ngăn kín gây bí bách, đồng thời tận dụng tối đa hệ thống cửa sổ và cửa chính để đón ánh sáng và gió trời.
Điều này không chỉ tiết kiệm năng lượng mà còn mang lại cảm giác gần gũi, tự nhiên, là yếu tố khiến khách hàng muốn ở lại lâu hơn.

2.6. Tính linh hoạt
Một mặt bằng quán cà phê linh hoạt cho phép dễ dàng thay đổi bố cục khi cần, ví dụ để tổ chức sự kiện, triển khai chương trình khuyến mãi hoặc điều chỉnh số lượng chỗ ngồi theo mùa cao điểm. Việc sử dụng nội thất di động, bàn ghế module và bố trí không gian mở giúp quán nhanh chóng thích ứng với mọi tình huống mà vẫn giữ được sự tiện nghi và thẩm mỹ.

>> Xem thêm: Mẫu thiết kế nhà cấp 4 kết hợp quán cà phê
3. Gợi ý phương án thiết kế mặt bằng quán cafe theo diện tích và hình dạng
3.1. Mẫu thiết kế mặt bằng quán cà phê diện tích nhỏ (<30m2)
Với diện tích hạn chế, quán nên ưu tiên nội thất nhỏ gọn, linh hoạt và tận dụng tối đa không gian theo chiều cao. Quầy pha chế, khu order và kho nên bố trí gọn gàng, lối đi thông thoáng, kết hợp ánh sáng tự nhiên và gam màu sáng để tạo cảm giác rộng rãi, thoải mái cho khách hàng mà vẫn đảm bảo công năng vận hành.





>> Xem thêm:
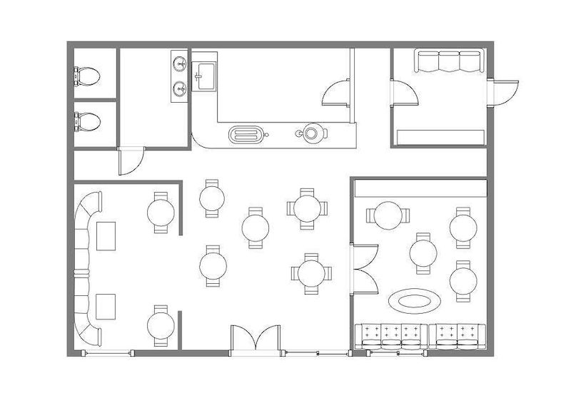
3.2. Mẫu thiết kế mặt bằng quán cà phê diện tích vừa (30-80m2)
Với quán có diện tích trung bình, bạn có thể bố trí khu vực khách ngồi đa dạng: ghế đơn, ghế đôi, và bàn nhóm nhỏ để phục vụ nhiều đối tượng khách.
Quầy pha chế nên đặt ở vị trí trung tâm hoặc gần cửa để thuận tiện di chuyển, kết hợp khu trưng bày, tiểu cảnh hoặc decor điểm nhấn. Đồng thời, vẫn cần giữ lối đi rộng rãi, ánh sáng tự nhiên và thông gió tốt, giúp không gian vừa đẹp vừa thoải mái, tối ưu công suất phục vụ.





> Xem thêm:
- Mẫu thiết kế quán cafe 30m2
- Mẫu thiết kế quán cafe nhỏ 40m2
- Mẫu thiết kế quán cafe 50m2
- Mẫu thiết kế quán cafe 60m2
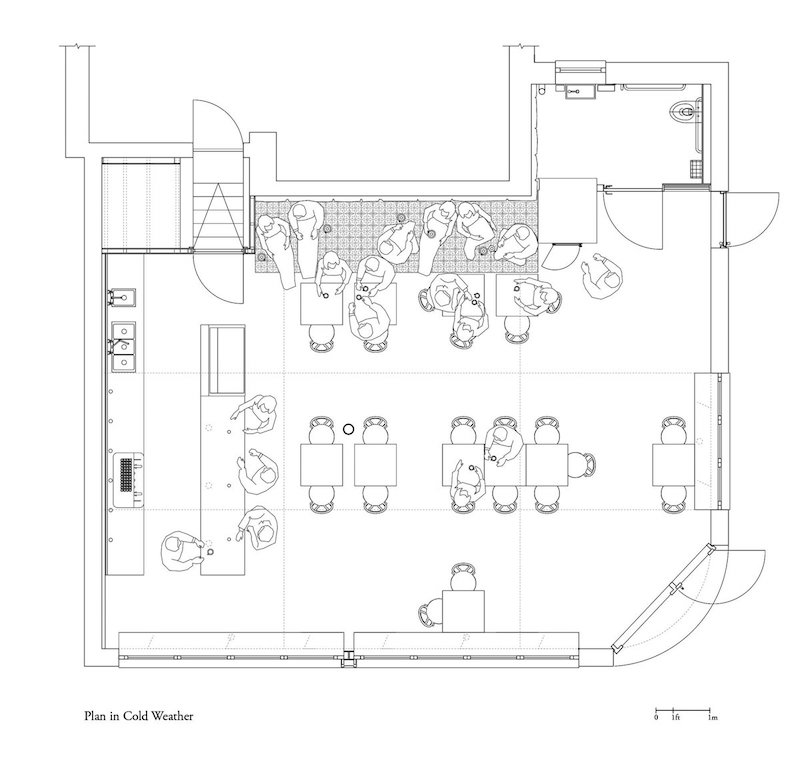
3.3. Mẫu thiết kế mặt bằng quán cà phê diện tích lớn (>80m2) hoặc nhiều tầng
Với diện tích rộng hoặc quán nhiều tầng, việc phân khu chức năng rõ ràng là yếu tố quan trọng. Nên tạo các khu vực riêng cho khách ngồi, quầy bar, sân ngoài, khu sự kiện hoặc góc check-in để mang lại trải nghiệm phong phú.
Lối đi giữa các khu vực phải rộng rãi, thuận tiện di chuyển, kết hợp ánh sáng, thông gió và trang trí điểm nhấn để không gian vẫn gần gũi, ấm cúng, đồng thời tận dụng tối đa diện tích phục vụ nhiều khách mà không gây cảm giác trống trải.





> Xem thêm:
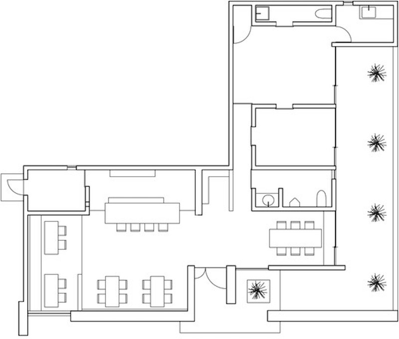
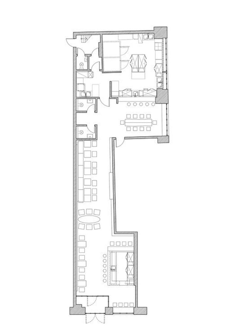
3.4. Mẫu thiết kế mặt bằng quán cà phê hình chữ L, dài hẹp, có góc cạnh
Với mặt bằng không vuông vức, quan trọng là tối ưu luồng di chuyển và tận dụng mọi góc chết. Khu order và quầy pha chế nên đặt ở phần rộng hoặc ngay gần cửa ra vào để thuận tiện cho khách và nhân viên.
Các góc hẹp có thể bố trí ghế đơn, kệ trưng bày hoặc tiểu cảnh nhỏ, tạo điểm nhấn và tránh lãng phí diện tích. Sử dụng vách ngăn trong suốt hoặc nội thất linh hoạt giúp không gian dài hẹp trông thoáng đãng và hài hòa.





>> Xem thêm: Mẫu thiết kế quán cafe góc 2 mặt tiền
4. 7 sai lầm cần tránh khi thiết kế mặt bằng quán cà phê
Khi thiết kế mặt bằng quán cà phê, có một số lỗi phổ biến có thể ảnh hưởng đến trải nghiệm khách và hiệu quả vận hành:
- Không phân luồng rõ ràng: Khách và nhân viên di chuyển chồng chéo, gây ùn tắc và khó chịu.
- Bố trí quầy bar không tiện lợi: Quầy ở vị trí xa hoặc kém hợp lý làm tăng thời gian phục vụ và thao tác của nhân viên.
- Thiếu WC hoặc WC không đủ tiêu chuẩn: Làm giảm trải nghiệm khách và vi phạm các quy định về vệ sinh.
- Bố trí quá nhiều bàn ghế: Gây cảm giác chật chội, giảm sự thoải mái cho khách.
- Bỏ qua yếu tố an toàn PCCC, lối thoát hiểm: Tiềm ẩn nguy cơ mất an toàn trong tình huống khẩn cấp.
- Không tính toán đến việc vệ sinh, bảo trì: Dẫn đến khó khăn trong vận hành lâu dài, tốn kém chi phí.
- Thiết kế không phù hợp với đối tượng khách hàng mục tiêu: Không gian, phong cách hay bố trí không đáp ứng nhu cầu và sở thích của khách, giảm khả năng giữ chân khách hàng.
Việc thiết kế mặt bằng quán cà phê không chỉ giúp tối ưu công năng, nâng cao trải nghiệm khách hàng mà còn quyết định hiệu quả vận hành và doanh thu của quán. Một bản thiết kế nội thất quán cafe khoa học sẽ đảm bảo luồng di chuyển hợp lý, bố trí khu vực chức năng thông minh và không gian hài hòa, phù hợp với đối tượng khách hàng mục tiêu.
H3 Group – Là đơn vị cung cấp GIẢI PHÁP THIẾT KẾ THI CÔNG “ĐẸP – BỀN VỮNG” đã được khẳng định với các dự án trong và ngoài nước. Tại đây chúng tôi không chỉ cung cấp những thiết kế đẹp hợp xu hướng mà còn mang lại giải pháp “may đo” cho từng nhu cầu chủ đầu tư.
ƯU ĐÃI ĐẶC BIỆT CỦA THÁNG: Chiết khấu 80% chi phí thiết kế khi khách hàng chọn gói dịch vụ thi công trọn gói (trừ thẳng vào chi phí). Bảo hành miễn phí 12 tháng, bảo trì 5 năm.
Nếu bạn muốn sở hữu mặt bằng quán cà phê tối ưu, đẹp và chuyên nghiệp, H3 Group sẵn sàng đồng hành cùng bạn từ khâu tư vấn, bố trí đến thiết kế chi tiết. Liên hệ ngay với H3 Group qua hotline/zalo: 0886.888.393 để nhận giải pháp thiết kế mặt bằng phù hợp nhất cho quán của bạn và biến ý tưởng kinh doanh thành hiện thực.





