Thiết kế biệt thự Vinhomes Ocean Park: Biểu tượng nghỉ dưỡng phía Đông Thủ đô

Chia sẻ bài viết :

MỤC LỤC

Vinhomes Ocean Park không những được biết đến như một khu đô thị hiện đại, mà còn là một biểu tượng mới của lối sống xanh và nghỉ dưỡng ngay giữa lòng khu vực phía Đông Thủ đô Hà Nội. Với môi trường sống tuyệt vời, sở hữu những thế mạnh địa lý vượt trội và cảnh quan thiên nhiên độc đáo, dự án này mang đến cho cư dân một cuộc sống đẳng cấp, gần gũi với thiên nhiên, đặc biệt là trải nghiệm “Biển xanh – Cát trắng” ngay tại thềm nhà. 

Để chủ nhân sở hữu một căn đơn lập đẳng cấp, nâng tầm không gian sống của mình, với bề dày kinh nghiệm sau hàng trăm dự án thực tế, H3 Group cung cấp gia chủ toàn bộ lộ trình và các ý tưởng thiết kế biệt thự Vinhomes Ocean Park toàn diện nhất trong bài viết dưới đây.

1. Đặc thù kiến trúc các phân khu biệt thự Vinhomes Ocean Park

Trên quy mô đồ sộ của khu đô thị, hệ sinh thái Ocean Park được chia thành 3 đại đô thị liên tiếp: Ocean Park 1, Ocean Park 2, và Ocean Park 3. Mỗi khu vực đều có đặc điểm riêng, tạo nên sự đa dạng và phong phú trong âm hưởng kiến trúc cũng như không gian sống.

Quy mô Ocean City:

  • Ocean Park 1: Đây là khu đô thị đầu tiên, xây dựng trên quy mô lớn và làn sóng phát triển mạnh mẽ của không gian sống xanh, tâm điểm là biển hồ nước mặn kết hợp với hồ nước ngọt cùng công viên cây xanh, tạo nên không gian sống hòa hợp, gần gũi với thiên nhiên.
  • Ocean Park 2: Được xây dựng với quy mô lớn hơn, khu vực này mở rộng các tiện ích cộng đồng và các công trình biệt thự sang trọng, tiếp tục nâng cao tiêu chuẩn sống cho cư dân với phong cách hiện đại và đẳng cấp.
  • Ocean Park 3: Khu vực thuộc giai đoạn mở rộng tiếp theo, với quy mô phát triển mạnh mẽ, nơi quy tụ các công trình biệt thự cao cấp và các tiện ích nghỉ dưỡng đỉnh cao, mang đến một không gian sống hoàn hảo và đồng bộ.
Cận cảnh quy mô đẳng cấp của Vinhomes Ocean Park 1 với hệ sinh thái biển hồ nhân tạo lớn nhất Việt Nam, kết hợp hoàn hảo giữa không gian xanh và kiến trúc hiện đại
Cận cảnh quy mô đẳng cấp của Vinhomes Ocean Park 1 với hệ sinh thái biển hồ nhân tạo lớn nhất Việt Nam, kết hợp hoàn hảo giữa không gian xanh và kiến trúc hiện đại

Kiến trúc bàn giao

Tại mỗi khu vực của Vinhomes Ocean Park, kiến trúc biệt thự bàn giao đa dạng, từ phong cách Đông Dương (Indochine) với những chi tiết mềm mại và tinh tế, đến phong cách Địa Trung Hải phóng khoáng, tựa như những khu nghỉ dưỡng ven biển và sự sang trọng, thanh thoát của phong cách Pháp Cổ. Mỗi kiến trúc đều được thiết kế tỉ mỉ để tối ưu hóa không gian sống, tạo ra sự khác biệt và đẳng cấp cho từng phân khu.

Thách thức thiết kế

Đa số biệt thự được bàn giao ở dạng thô hoàn toàn. Điều này mang lại sự tự do trong phân chia công năng nhưng lại đặt ra bài toán khó về việc tạo ra sự đồng bộ. Các biệt thự với những phong cách khác nhau cần phải tương tác hài hòa với cảnh quan thiên nhiên xung quanh.

Điều này không chỉ yêu cầu kiến thức chuyên sâu về thiết kế mà còn phải đảm bảo rằng mỗi không gian nội thất cần hòa hợp với vẻ đẹp của biển hồ, mang lại một trải nghiệm sống hoàn hảo và trọn vẹn cho cư dân.

2. Giải pháp kỹ thuật và hoàn thiện thô biệt thự

Phần lớn biệt thự tại Vinhomes Ocean Park được bàn giao thô (hoàn thiện mặt ngoài, trống bên trong). Đây là “tờ giấy trắng” để gia chủ thỏa sức sáng tạo nhưng cũng tiềm ẩn nhiều rủi ro kỹ thuật.

2.1. Giải pháp Thang máy

Vì cấu trúc các ngôi nhà tại đây có quy mô từ 3.5 – 5 tầng, việc lắp thang máy là sự đầu tư không thừa, đáp ứng nhu cầu thiết yếu đi lại của các thành viên trong gia đình:

  • Vị trí: Nên được bố trí trong lòng thang bộ hoặc góc nhà để tiết kiệm diện tích.
  • Thang máy kính: Đây là xu hướng hàng đầu tại Ocean Park. Thang máy vách kính giúp không gian không bị bí bách, lấy ánh sáng tự nhiên từ giếng trời và tạo điểm nhấn sang trọng như một tác phẩm nghệ thuật trong nhà.
Trang bị hệ thống thang máy, tận dụng khoảng trống giữa lòng thang bộ giúp tiết kiệm không gian và không làm thay đổi cấu trúc móng nhà, biến thang máy thành một món trang sức cho ngôi biệt thự
Trang bị hệ thống thang máy, tận dụng khoảng trống giữa lòng thang bộ giúp tiết kiệm không gian và không làm thay đổi cấu trúc móng nhà, biến thang máy thành một món trang sức cho ngôi biệt thự

2.2. Giải pháp Chống thấm và Thông gió

Đặc thù các căn song lập và liền kề tại Ocean Park là nằm san sát nhau, vị trí nằm gần biển hồ, độ ẩm không khí cao hơn mức bình thường, việc xử lý chống thấm tường giáp ranh là cực kỳ quan trọng.

  • Chống thấm: Sử dụng các vật liệu thẩm thấu kết tinh hoặc màng chống thấm đa lớp (tối thiểu 3 lớp) cho khu vực ban công, sân thượng và nhà vệ sinh.
  • Thông gió: Tận dụng hệ thống cửa sổ nguyên bản của Vinhomes, giải pháp hệ thống điều hòa trung tâm VRV kết hợp thiết kế giếng trời hoặc các khoảng thông tầng để lưu thông khí biển vào sâu trong từng phòng.

2.3. Cải tạo không gian mở

Đặc quyền của cư dân Ocean Park là view và không gian sống đắt giá, nhiều gia chủ lựa chọn đập thông các bức tường ngăn cách giữa phòng khách và phòng bếp, sử dụng hệ cửa kính lùa siêu lớn để tạo ra một không gian mở rộng thoáng.

Phòng khách được sử dụng hệ cửa kính kịch trần cỡ lớn giúp xóa nhòa ranh giới giữa bên trong và sân vườn, đón trọn ánh sáng tự nhiên, chiêm ngưỡng góc nhìn đắt giá
Phòng khách được sử dụng hệ cửa kính kịch trần cỡ lớn giúp xóa nhòa ranh giới giữa bên trong và sân vườn, đón trọn ánh sáng tự nhiên, chiêm ngưỡng góc nhìn đắt giá

2.4. Vật liệu nội thất

Việc lựa chọn vật liệu và giải pháp nội thất cao cấp không chỉ đóng vai trò tạo nên vẻ đẹp sang trọng, tinh tế, mà còn ảnh hưởng trực tiếp đến trải nghiệm sống lâu dài, giá trị tài sản và sự an toàn và tiện nghi của gia đình.

  • Gỗ tự nhiên và gỗ kỹ thuật cao cấp: Gỗ là vật liệu chủ đạo trong không gian biệt thự cao cấp, mang lại cảm giác ấm áp và đẳng cấp.
  • Gỗ tự nhiên: Óc chó, gõ đỏ, sồi, teak… với sắc nâu trầm và vân gỗ cuộn sóng, đây là lựa chọn số 1 cho các căn biệt thự Ngọc Trai hay Hải Âu để khẳng định đẳng cấp.
  • Gỗ kỹ thuật cao cấp: Plywood, MDF chống ẩm chuẩn E0/E1, veneer tự nhiên, laminate cao cấp… dành riêng cho các khu vực tủ bếp hoặc gần ban công để đối phó với độ ẩm đặc thù của vùng biển hồ, giúp hạn chế cong vênh, mối mọt, tối ưu chi phí nhưng vẫn đảm bảo thẩm mỹ.
  • Đá cao cấp và vật liệu bề mặt:
    • Đá Marble và Quartz: Sử dụng cho bàn đảo, vách tivi hoặc sàn sảnh phòng khách. Các dòng đá nhân tạo cao cấp hiện nay có khả năng chống thấm và ố vàng tuyệt vời, phù hợp với gia đình thường xuyên tổ chức tiệc tùng.
    • Vật liệu bề mặt cao cấp: Acrylic bóng gương, laminate chống xước ứng dụng cho hệ tủ bếp hoặc tủ quần áo trong các căn biệt thự hiện đại, tạo độ sâu cho không gian nhờ hiệu ứng phản chiếu gương và rất dễ vệ sinh, mang lại vẻ đẹp bóng bẩy, thời thượng.
  • Kim loại hoàn thiện cao cấp:
    • Inox mạ PVD: Các chi tiết nẹp inox màu vàng gương hoặc đồng giúp không gian thêm phần lộng lẫy dưới ánh đèn chùm.
    • Kính hộp Low-E: Giúp cách âm, cách nhiệt, ngăn tia UV nhưng vẫn đảm bảo độ trong suốt tối đa để ngắm cảnh.
  • Hệ thống Smarthome: Một căn biệt thự hiện đại không thể thiếu hệ thống điều khiển thông minh. Smarthome mang lại sự tiện nghi, an toàn và trải nghiệm sống hiện đại, đồng thời gia tăng giá trị cho cả ngôi nhà.
    • Điều khiển rèm cửa, điều hòa, hệ thống ánh sáng tự cảm ứng thông minh
    • Hệ thống an ninh, điều khiển camera, cửa khóa tự động
    • Âm thanh đa vùng, các lệnh cài đặt tự động theo khung giờ
  • Nội thất đóng đo theo thiết kế: Cho phép thiết kế các hệ tủ kịch trần, vừa tăng tối đa không gian lưu trữ cho gia đình, vừa tạo cảm giác trải nghiệm sống trong không gian bề thế, uy nghi hơn.

>> Xem thêm: TOP 3 xu hướng thiết kế biệt thự thống trị năm 2026

3. TOP xu hướng thiết kế nội thất biệt thự Vinhomes Ocean Park

3.1. Biệt thự Tiểu khu Ngọc Trai – Kiến trúc Địa Trung Hải mái vòm

Tiểu khu Ngọc Trai là phân khu đóng, nơi hội tụ cộng đồng cư dân tinh hoa và những căn biệt thự sở hữu diện tích lớn, gia chủ là người bận rộn muốn tận hưởng không khí trong lành, đi dạo ven hồ ngay khi bước chân ra khỏi cửa nhà mà không phải di chuyển xa. Đặc trưng kiến trúc tại đây là phong cách Địa Trung Hải mái vòm, mang vẻ đẹp phóng khoáng, lãng mạn, đậm chất sang trọng.

Các căn biệt thự nổi bật với hình khối vững chãi đậm nét kiến trúc Địa Trung Hải, sơn trắng tinh khôi kết hợp cùng hệ cửa sổ và ban công hình mái vòm mềm mại tại tiểu khu Ngọc Trai
Các căn biệt thự nổi bật với hình khối vững chãi đậm nét kiến trúc Địa Trung Hải, sơn trắng tinh khôi kết hợp cùng hệ cửa sổ và ban công hình mái vòm mềm mại tại tiểu khu Ngọc Trai
Thiết kế mặt tiền của biệt thự với điểm nhấn là hệ mái vòm xuyên suốt các tầng, mẫu kiến trúc Địa Trung Hải tập trung vào thiết kế đối xứng các ô cửa sổ, ban công và các đường phào chỉ trên nền tường trắng
Thiết kế mặt tiền của biệt thự với điểm nhấn là hệ mái vòm xuyên suốt các tầng, mẫu kiến trúc Địa Trung Hải tập trung vào thiết kế đối xứng các ô cửa sổ, ban công và các đường phào chỉ trên nền tường trắng
Không gian phòng khách mở với cửa kính vòm cao kịch trần, với phong cách nội thất dầm gỗ trần nhà và lò sưởi hiện đại, tạo không gian ấm cúng và thoáng đạt cho căn biệt thự
Không gian phòng khách mở với cửa kính vòm cao kịch trần, với phong cách nội thất dầm gỗ trần nhà và lò sưởi hiện đại, tạo không gian ấm cúng và thoáng đạt cho căn biệt thự
Các ô cửa sổ lớn với rèm vải lanh tạo sự thông thoáng và cảm giác thư thái, nội thất tông màu kem, be chủ đạo từ sofa nỉ đến màu sơn tường tạo sự mộc mạc, ấm cúng
Các ô cửa sổ lớn với rèm vải lanh tạo sự thông thoáng và cảm giác thư thái, nội thất tông màu kem, be chủ đạo từ sofa nỉ đến màu sơn tường tạo sự mộc mạc, ấm cúng

3.2. Biệt thự Tiểu khu Sao Biển và San Hô – Kiến trúc Indochine và Địa Trung Hải

Tiểu khu Sao Biển và San Hô là hai phân khu nổi bật tại Vinhomes Ocean Park, tại đây, với hệ thống biệt thự đa dạng về diện tích, mặt tiền rộng và không gian sống thoáng đãng. Phong cách thiết kế chủ đạo tại đây là phong cách Đông Dương (Indochine) và Địa Trung Hải, tạo nên bản sắc riêng biệt trong tổng thể quy hoạch của khu đô thị biển.

Biệt thự cao cấp với sự giao thoa kiến trúc hình khối và hệ mái vòm của phong cách Địa Trung Hải kết hợp cùng những chi tiết tinh tế mang hơi hướng Đông Dương
Biệt thự cao cấp với sự giao thoa kiến trúc hình khối và hệ mái vòm của phong cách Địa Trung Hải kết hợp cùng những chi tiết tinh tế mang hơi hướng Đông Dương
Thiết kế nội thất phòng khách biệt thự phong cách Indochine sang trọng với tone màu đen, trắng chủ đạo, nổi bật với bộ sofa gỗ đen uốn lượn kết hợp đệm mây tre đan, đèn chùm cổ điển
Thiết kế nội thất phòng khách biệt thự phong cách Indochine sang trọng với tone màu đen, trắng chủ đạo, nổi bật với bộ sofa gỗ đen uốn lượn kết hợp đệm mây tre đan, đèn chùm cổ điển
Không gian phòng khách phong cách Indochine hiện đại với nền gạch bông họa tiết cổ điển, bộ sofa đôi bọc nệm màu kem viền gỗ đen sang trọng và quạt trần cánh lá độc đáo
Không gian phòng khách phong cách Indochine hiện đại với nền gạch bông họa tiết cổ điển, bộ sofa đôi bọc nệm màu kem viền gỗ đen sang trọng và quạt trần cánh lá độc đáo
Không gian nổi bật với nền gạch bông họa tiết đen trắng truyền thống, trần nhà ốp gỗ kết hợp lưới mây tre đan ô vuông và quạt trần cổ điển, phong cách Indochine trở nên đặc biệt hơn hết
Không gian nổi bật với nền gạch bông họa tiết đen trắng truyền thống, trần nhà ốp gỗ kết hợp lưới mây tre đan ô vuông và quạt trần cổ điển, phong cách Indochine trở nên đặc biệt hơn hết

3.3. Biệt thự Tiểu khu Hải Âu – Kiến trúc Ý thanh lịch

Tiểu khu Hải Âu là một trong những phân khu biệt thự cao cấp tại Vinhomes Ocean Park, nổi bật với phong cách kiến trúc Ý thanh lịch. Các căn biệt thự tại đây được quy hoạch chỉn chu, mặt tiền thoáng, không gian sống yên tĩnh, phù hợp với gia chủ yêu thích sự tinh tế, sang trọng và chuẩn mực châu Âu hiện đại.

Không gian kiến trúc Ý thanh lịch tại Tiểu khu Hải Âu, nổi bật với sự kết hợp hài hòa giữa nét cổ điển của các ô cửa vòm và sự tiện nghi của biệt thự phố hiện đại
Không gian kiến trúc Ý thanh lịch tại Tiểu khu Hải Âu, nổi bật với sự kết hợp hài hòa giữa nét cổ điển của các ô cửa vòm và sự tiện nghi của biệt thự phố hiện đại
Nội thất phòng khách sang trọng với tông màu trung tính, bộ sofa hiện đại, không gian mở kết nối phòng ăn và tầng lửng, tràn ngập ánh sáng tự nhiên từ cửa sổ vòm cao
Nội thất phòng khách sang trọng với tông màu trung tính, bộ sofa hiện đại, không gian mở kết nối phòng ăn và tầng lửng, tràn ngập ánh sáng tự nhiên từ cửa sổ vòm cao
Nội thất phòng khách biệt thự thông tầng phong cách hiện đại, thanh lịch tại Tiểu khu Hải Âu với bộ sofa trung tính và không gian mở
Nội thất phòng khách biệt thự thông tầng phong cách hiện đại, thanh lịch tại Tiểu khu Hải Âu với bộ sofa trung tính và không gian mở
 Phong cách nội thất phù hợp đặc trưng khu Hải Âu: thiết kế sofa hiện đại, không gian mở nối liền khu vực bếp ốp đá marble, tranh nghệ thuật trừu tượng khổ lớn
Phong cách nội thất phù hợp đặc trưng khu Hải Âu: thiết kế sofa hiện đại, không gian mở nối liền khu vực bếp ốp đá marble, tranh nghệ thuật trừu tượng khổ lớn

>> Xem thêm: Mẫu thiết kế nội thất biệt thự Vinhomes The Harmony

4. Giải pháp công năng cho các loại hình biệt thự Ocean Park

4.1. Biệt thự đơn lập

Biệt thự đơn lập được xem là dòng sản phẩm cao cấp nhất với 4 mặt thoáng, diện tích sân vườn lớn, giải pháp thiết kế cần tập trung vào việc tận dụng tối đa ánh sáng tự nhiên. Giải pháp thiết kế thành không gian mở, tập trung vào việc tạo sự kết hợp thiên nhiên vào nội thất qua các hệ cửa kính lớn và khoảng thông tầng sang trọng tại phòng khách.

  • Tầng 1 thường được thiết kế liên hoàn giữa bếp, phòng khách và phòng ăn nhằm tối ưu diện tích sinh hoạt chung, trong khi các tầng trên bố trí phòng ngủ Master khép kín kết hợp phòng thay đồ và ban công rộng.
  • Tận dụng khoảng sân vườn xung quanh để thiết kế hồ bơi, tiểu cảnh hoặc khu tiệc BBQ ngoài trời, tạo nên một hệ sinh thái nghỉ dưỡng tại gia
Minh họa giải pháp thiết kế biệt thự đơn lập với không gian mở với khu vực phòng khách thông tầng rộng lớn, giúp ánh sáng tự nhiên lưu thông xuyên suốt các tầng
Minh họa giải pháp thiết kế biệt thự đơn lập với không gian mở với khu vực phòng khách thông tầng rộng lớn, giúp ánh sáng tự nhiên lưu thông xuyên suốt các tầng

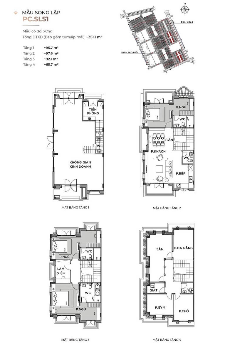
4.2. Biệt thự song lập

Với đặc thù chung tường và có 3 mặt thoáng, giải pháp công năng cho biệt thự song lập tập trung vào việc tận dụng tối đa ánh sáng tự nhiên từ các khoảng mở bên hông nhà, giúp đón gió vào các phòng ở giữa nhà.

  • Ở tầng 1 thường được ưu tiên cho không gian sinh hoạt chung tối giản, giảm thiểu vách ngăn để tạo cảm giác rộng rãi; các tầng 2 và 3 được phân chia thành 3-4 phòng ngủ tiện nghi cùng các khu vực chức năng như phòng thờ hoặc phòng làm việc.
  • Sáng tạo với thiết kế sân vườn hình chữ L thành các lối đi xanh, vừa đảm bảo tính riêng tư, vừa tạo đối lưu không khí hiệu quả cho toàn bộ căn nhà.
Thiết kế mặt bằng biệt thự song lập tối ưu không gian mở, sử dụng giải pháp kiến trúc thông tầng và hệ thống cửa kính lớn giúp đưa thiên nhiên vào sâu trong ngôi nhà
Thiết kế mặt bằng biệt thự song lập tối ưu không gian mở, sử dụng giải pháp kiến trúc thông tầng và hệ thống cửa kính lớn giúp đưa thiên nhiên vào sâu trong ngôi nhà

4.3. Biệt thự shophouse

Shophouse là khu biệt thự đòi hỏi sự kết hợp tinh tế giữa mục tiêu giao thương và nhu cầu ở. Giải pháp công năng quan trọng là sự phân tách mạch lạc giữa luồng giao thông khu vực kinh doanh và không gian sống riêng tư của gia chủ.

  • Khuyến khích sử dụng vật liệu cách âm và hệ thống kỹ thuật riêng biệt giúp đảm bảo hoạt động kinh doanh tại tầng dưới không ảnh hưởng đến sự yên tĩnh và thoải mái của không gian nghỉ ngơi phía trên.
  • Tầng 1 và tầng 2 thường được thiết kế theo kiểu mặt tiền kính lớn để tối ưu diện tích trưng bày hoặc vận hành dịch vụ, trong khi các tầng phía trên được bố trí đầy đủ tiện nghi như một căn hộ cao cấp với lối đi riêng biệt.
Giải pháp bố trí nội thất Shophouse hiện đại, tập trung vào việc tạo sự thông thoáng qua các không gian mở nhưng vẫn đảm bảo sự riêng tư cho không gian sinh hoạt của gia chủ
Giải pháp bố trí nội thất Shophouse hiện đại, tập trung vào việc tạo sự thông thoáng qua các không gian mở nhưng vẫn đảm bảo sự riêng tư cho không gian sinh hoạt của gia chủ

>> Xem thêm: Mẫu thiết kế nội thất biệt thự Vinhomes hướng sống Đẳng cấp

5. Quy trình thi công và xin phép cải tạo tại Vinhomes Ocean Park

  1. Hồ sơ thiết kế: Chủ nhà cần chuẩn bị bộ bản vẽ kỹ thuật (kiến trúc, kết cấu, điện nước) do đơn vị có tư cách pháp nhân thực hiện.
  2. Hồ sơ xin phép cải tạo: Gia chủ hoặc đơn vị thiết kế cần chuẩn bị:
  • Bản vẽ kiến trúc cải tạo (phối cảnh 3D mặt tiền nếu có thay đổi).
  • Bản vẽ kết cấu.
  • Bản vẽ điện nước (M&E) và phòng cháy chữa cháy (PCCC).
  • Bản cam kết đảm bảo vệ sinh môi trường và an toàn lao động.
  1. Ký cam kết và đặt cọc: Chủ đầu tư hoặc gia chủ ký cam kết thi công đúng tiến độ, đảm bảo vệ sinh môi trường và nộp một khoản phí đặt cọc thi công.
  2. Triển khai thi công: Đơn vị thi công phải đăng ký danh sách công nhân, phương tiện ra vào và tuân thủ giờ giấc làm việc theo quy định của cư dân.
  3. Nghiệm thu và bàn giao: Sau khi hoàn thành, Ban quản lý kiểm tra thực tế. Nếu công trình đúng với bản vẽ đã duyệt, gia chủ sẽ được hoàn trả tiền cọc và chính thức đưa công trình vào sử dụng.

Thiết kế nội thất biệt thự Vinhomes Ocean Park không chỉ là bài trí đồ đạc, mà là nghệ thuật phác họa nên không gian nghỉ dưỡng đích thực. Với sự xa xỉ trên từng mét vuông, mỗi căn hộ đòi hỏi sự cân bằng tuyệt đối giữa công năng và thẩm mỹ. Từ sự lộng lẫy của phong cách Địa Trung Hải tại Ngọc Trai, nét hoài cổ Indochine tại Sao Biển, đến vẻ lịch lãm của kiến trúc Ý tại Hải Âu, chúng tôi cam kết mang đến những giải pháp đột phá về vật liệu và công nghệ thông minh, giúp hiện thực hóa bản tuyên ngôn cá tính của từng gia chủ.

Nếu bạn đang cần một đơn vị thiết kế thi công biệt thự Vinhomes Ocean Park, mong muốn kiến tạo một không gian sống đẳng cấp, hãy bắt đầu từ việc thấu hiểu không gian và lựa chọn những giải pháp kỹ thuật bền vững nhất. Hãy nhanh tay liên hệ đến H3 Group ngay hôm nay qua Hotline/Zalo: 0886.888.393, để nhận tư vấn từ đội ngũ kiến trúc sư dày dặn kinh nghiệm của chúng tôi.

H3 Group – Là đơn vị cung cấp GIẢI PHÁP THIẾT KẾ THI CÔNG “ĐẸP – BỀN VỮNG” đã được khẳng định với các dự án trong và ngoài nước. Tại đây chúng tôi không chỉ cung cấp những thiết kế đẹp hợp xu hướng mà còn mang lại giải pháp “may đo” cho từng nhu cầu chủ đầu tư.

ƯU ĐÃI ĐẶC BIỆT CỦA THÁNG: Chiết khấu 80% chi phí thiết kế khi khách hàng chọn gói dịch vụ thi công trọn gói (trừ thẳng vào chi phí). Bảo hành miễn phí 12 tháng, bảo trì 5 năm.

LIÊN HỆ TƯ VẤN 1-1 NGAY

Bài viết liên quan

Nhận tư vấn dịch vụ

Nhận tư vấn dịch vụ

Vui lòng để lại thông tin.