Vấn đề xảy ra khi các nhà hàng thiết kế chỉ tập trung vào cái “đẹp” mà bỏ qua những yêu cầu về tiêu chuẩn thiết kế. Vậy tại sao thiết kế nhà hàng SAI tiêu chuẩn là “tự sát”? Chính bởi những hệ lụy mà nó mang đến không thể lường trước về cả pháp lý và hiệu quả vận hành. Cụ thể:
- Nỗi đau pháp lý: Nếu không đạt PCCC (QCVN 06:2022/BXD) nhà hàng vi phạm không thể nghiệm thu PCCC, đối mặt với nguy cơ bị đình chỉ hoặc đóng cửa vĩnh viễn. Theo Nghị định 155/2018/NĐ-CP, việc thiết kế sai quy trình bếp sẽ khiến cơ sở không được cấp Giấy chứng nhận đủ điều kiện VSATTP, tước bỏ quyền kinh doanh hợp pháp.
- Nỗi đau vận hành: Các vấn đề về vệ sinh thực phẩm, sự thuận tiện di chuyển trong nhà hàng gây ra tình trạng nhiễm khuẩn chéo giữa đồ sống và đồ chín. Không gian chật chội, trải nghiệm khách hàng bị giảm đáng kể, nhân viên không thể đạt hiệu suất làm việc vì thường xuyên va chạm, cản trở lối đi của nhau.
Thay vì phải chi trả những khoản phạt khổng lồ hoặc tốn kém chi phí đập đi xây lại, một lộ trình thiết kế bài bản ngay từ đầu sẽ đảm bảo cho nhà hàng vận hành trơn tru và bền vững. Trong bài viết dưới đây, với quá trình nghiên cứu thận trọng, H3 Group sẽ giúp bạn tổng hợp và hiểu rõ các tiêu chuẩn thiết kế nhà hàng đạt chuẩn theo TCVN mới nhất.
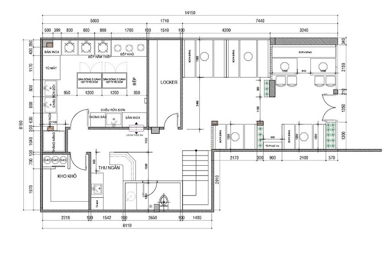
1. Tiêu chuẩn phân chia khu vực chức năng
Thành công xây dựng một sơ đồ công năng phân chia khu vực không chỉ tối ưu hóa không gian mà còn tránh tình trạng xung đột giữa các luồng công việc và khách hàng.
1.1. Khu vực ăn uống: Khoảng 50 – 60%
Khu vực ăn uống chính có vai trò như phần “cơ bắp” của nhà hàng, khu vực này chiếm phần lớn diện tích trong nhà hàng, để khách hàng có không gian thoải mái để thưởng thức bữa ăn. Tùy vào loại hình và phong cách nhà hàng, tỷ lệ này có thể điều chỉnh, nhưng yêu cầu chung vẫn cần đảm bảo không gian rộng rãi cho khách.


1.2. Khu vực bếp: Khoảng 30%
Đóng vai trò là “trái tim” của nhà hàng, bếp cần một không gian đủ rộng để các hoạt động sơ chế thực phẩm và chế biến món ăn phải diễn ra hiệu quả, đặc biệt là khi bạn cần phục vụ một lượng lớn khách hàng cùng một lúc. Thiết kế bếp phải đảm bảo đúng quy trình vệ sinh, đầy đủ các phần xử lý an toàn thực phẩm và không bị gián đoạn trong quá trình phục vụ.


1.3. Kho và Văn phòng: Khoảng 10 – 20%.
Khu vực kho chứa nguyên liệu và văn phòng quản lý cần bố trí tinh tế để đảm bảo tính khoa học và tiết kiệm diện tích mà không làm đứt mạch nhà hàng. Kho cần đủ không gian để chứa hàng hóa mà vẫn đảm bảo yêu cầu vệ sinh an toàn. Văn phòng quản lý cần yêu cầu sự an toàn và thận trọng trong quá trình bảo mật.

1.4. Sơ đồ dây chuyền công năng
Để tối ưu hóa quy trình làm việc, cần thiết lập sơ đồ công năng một cách hợp lý, đảm bảo nguyên tắc bất di bất dịch trong thiết kế nhà hàng hiện đại là: Không chồng chéo.

2. Tiêu chuẩn thiết kế khu vực ăn uống
Để nhà hàng nhận được những đánh giá tốt ngay từ cái nhìn đầu tiên, việc bố trí khu vực ăn uống sao cho hợp lý sẽ giúp tối ưu hóa trải nghiệm của khách hàng và nâng cao hiệu quả vận hành của nhà hàng.
2.1. Định mức diện tích trên đầu người
Tùy thuộc vào từng mô hình kinh doanh, con số định mức diện tích trên đầu người sẽ thay đổi để phù hợp. Cụ thể:
- Nhà hàng bình dân/Quán ăn nhanh: 1.2 – 1.4 m²/người.
- Nhà hàng tiêu chuẩn (Standard): 1.4 – 1.8 m²/người.
- Nhà hàng cao cấp (Fine Dining): 1.8 – 2.0+ m²/người.
- Khu vực tiệc nướng/lẩu (cần không gian thoát mùi): Tối thiểu 1.6 m²/người.


2.2. Tiêu chuẩn kích thước lối đi
- Lối đi chính: Tối thiểu 1.2m – 1.5m (để 2 người đi ngược chiều hoặc xe đẩy đi qua không bị chạm vai hoặc xe đẩy phục vụ di chuyển dễ dàng).
- Lối đi phụ (giữa các bàn): Tối thiểu 0.9m (mức tối thiểu đảm bảo sự an toàn khi thao tác bưng bê của nhân viên, không gây ảnh hưởng đến khách đang ngồi).
2.3. Tiêu chuẩn bàn ghế
- Bàn ăn Á thông dụng: Cao 750mm (chiều cao tiêu chuẩn phù hợp với người Việt). Đây là chỉ số “vàng” được nghiên cứu dựa trên nhân trắc học của người Việt, giúp tạo tư thế ngồi thoải mái và tối ưu cho việc thưởng thức ẩm thực.
- Bàn Bar: Cao 1.000 – 1.100mm kết hợp hoàn hảo với ghế bar cao 750mm (tính đến mặt ngồi) để tạo độ độ dốc khuỷu tay lý tưởng, mang lại trải nghiệm thư giãn và phong cách cho các vị khách thực thụ.

3. Tiêu chuẩn thiết kế bếp nhà hàng (Quan trọng nhất về Pháp lý)
Để cơ sở kinh doanh của bạn được cấp Giấy chứng nhận Cơ sở đủ điều kiện VSATTP, thiết kế bếp phải đảm bảo tuân thủ nghiêm ngặt các tiêu chuẩn dưới đây:
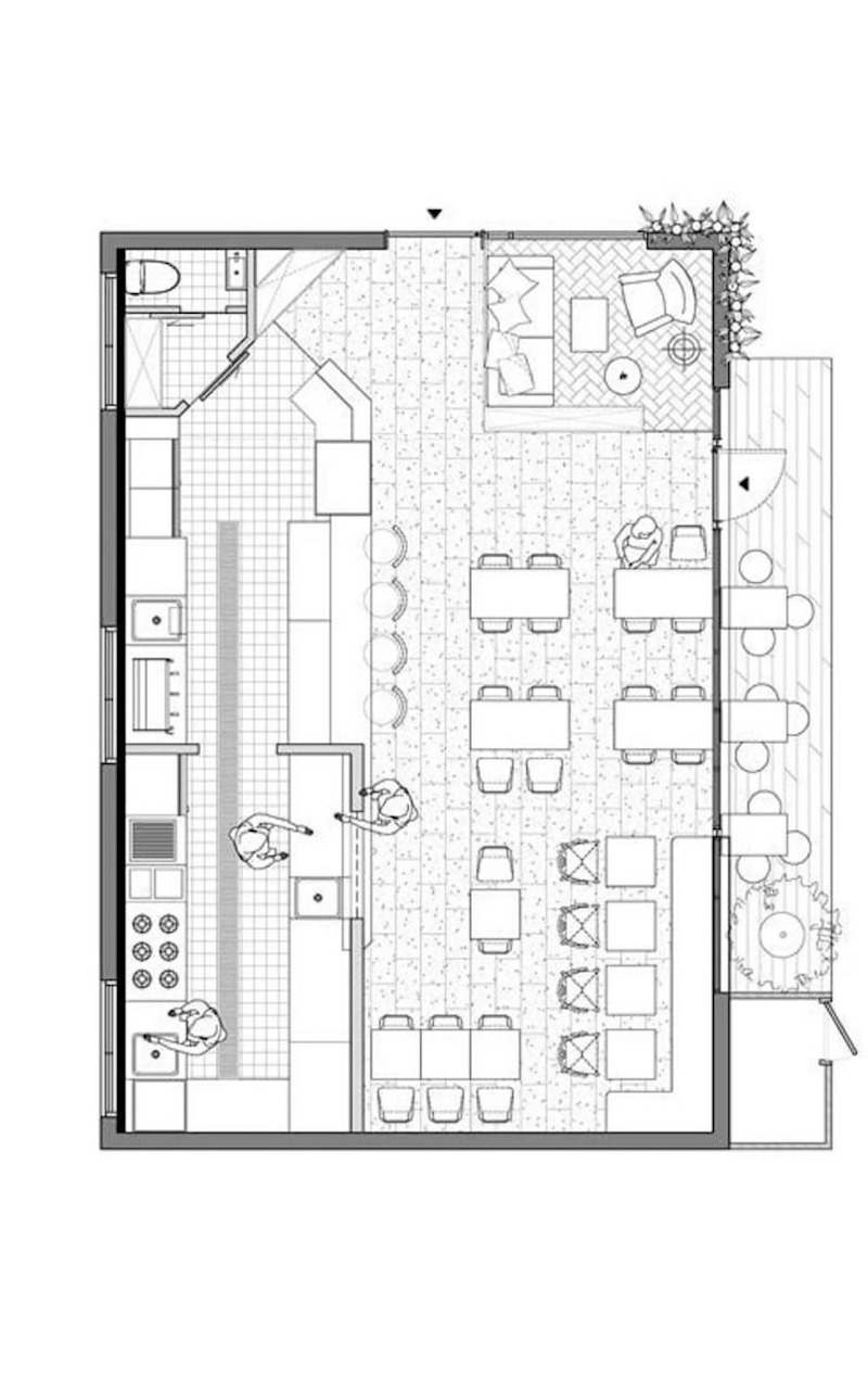
3.1. Nguyên tắc bếp một chiều (One-way flow)
Đây là nguyên tắc quan trọng trong thiết kế chuỗi bếp công nghiệp, “một chiều” có nghĩa là di chuyển từ khâu này đến khâu khác một chiều, không có sự đảo ngược hoặc tái di chuyển.
Điều này giúp giảm nguy cơ ô nhiễm chéo giữa thực phẩm sống và đã chế biến, đảm bảo vệ sinh an toàn thực phẩm, tăng hiệu quả làm việc và kiểm soát chất lượng dễ dàng hơn.
Ví dụ về một thiết kế theo Nguyên tắc bếp một chiều:

3.2. Tiêu chuẩn thông gió và hút mùi
Theo quy định TCVN 5687:2024 về tiêu chuẩn thông gió và hút mùi, cần đảm bảo nồng độ độc hại dưới 30%, đảm bảo một môi trường bếp công nghiệp an toàn, thoải mái và hiệu quả, bảo vệ sức khỏe nhân viên và nâng cao chất lượng thực phẩm.
Yêu cầu:
- Thông gió: Đảm bảo cung cấp đủ không khí tươi và duy trì lưu thông không khí tốt, với lưu lượng tối thiểu là 30 m³/h cho mỗi người làm việc.
- Hút mùi: Công suất hệ thống hút mùi phải đủ để loại bỏ khói, mùi và khí độc trong bếp, với khả năng hút hết không khí ô nhiễm trong 5-10 phút.
- Thiết kế hệ thống: Cần có hệ thống quạt thông gió và hút mùi hợp lý, dễ bảo trì và vệ sinh, đảm bảo an toàn cho sức khỏe nhân viên.
- Bảo trì: Hệ thống cần được bảo trì và kiểm tra định kỳ để duy trì hiệu quả hoạt động và bảo vệ sức khỏe người sử dụng.
4. Tiêu chuẩn hệ thống kỹ thuật (MEP) cho nhà hàng
4.1. Tiêu chuẩn ánh sáng
Theo TCVN 7114:2008, có những yêu cầu cụ thể về mức độ ánh sáng trong các khu vực làm việc, đặc biệt là trong các khu vực chế biến thực phẩm như bếp công nghiệp, kinh doanh:
- Khu vực ăn uống: 300 – 500 Lux (Ánh sáng vàng ấm tạo cảm giác ngon miệng).
- Mức độ chiếu sáng: Đảm bảo mức độ ánh sáng phù hợp với từng khu vực trong bếp, từ 100 lux (kho) đến 500 lux (khu chế biến).
- Ánh sáng tự nhiên và nhân tạo: Kết hợp ánh sáng tự nhiên và nhân tạo, sử dụng đèn huỳnh quang hoặc LED để tiết kiệm năng lượng.
- Độ đồng đều ánh sáng: Phân bổ ánh sáng đồng đều, tránh tình trạng thiếu sáng hoặc chói.
- Điều chỉnh ánh sáng: Đảm bảo có khả năng điều chỉnh ánh sáng linh hoạt trong các khu vực làm việc.


4.2. Tiêu chuẩn cách âm
- Theo TCVN và các tiêu chuẩn xây dựng, mức độ ồn trong các khu vực làm việc (bao gồm cả bếp công nghiệp) không được vượt quá 85 dB.
- Độ ồn tối đa trong khu vực ăn uống không nên vượt quá 60dB – 70dB. Tiếng ồn ở các khu vực chế biến cần được kiểm soát dưới 85 dB để bảo vệ sức khỏe của nhân viên.
- Thiết kế cần sử dụng các vật liệu tiêu âm (trần thạch cao lỗ, vách bọc vải, thảm) để tránh tiếng vang từ tiếng nói chuyện và tiếng va chạm bát đĩa.
5. Quy chuẩn thiết kế vệ sinh cho nhà hàng
5.1. Số lượng buồng phòng
- Định mức số lượng: Số lượng buồng vệ sinh cần tính toán dựa trên công suất phục vụ tối đa. Theo tiêu chuẩn chung, nhà hàng quy mô 100 – 150 khách cần tối thiểu 3 – 4 phòng vệ sinh cho khách hàng, ít nhất 1 buồng vệ sinh cho người khuyết tật (dành cho nhà hàng quy mô diện tích lớn) và 1 phòng riêng biệt cho nhân viên.
- Vận hành cao điểm: Cần đảm bảo số lượng buồng phòng đủ đáp ứng nhu cầu trong khung giờ cao điểm, tránh tình trạng khách hàng phải chờ đợi lâu, gây ảnh hưởng trực tiếp đến chất lượng dịch vụ.

5.2. Vị trí đặt WC
Vị trí của nhà vệ sinh cần thuận tiện nhưng không làm ảnh hưởng đến không gian ăn uống và các khu vực công cộng khác.
- Tách biệt khu vực khách và nhân viên: Nhà vệ sinh cho khách và nhân viên cần phải tách biệt hoàn toàn để đảm bảo vệ sinh và thuận tiện cho việc sử dụng.
- Dễ dàng tiếp cận: Các nhà vệ sinh nên có lối vào rõ ràng và dễ dàng di chuyển, đồng thời đảm bảo không có rào cản cho người khuyết tật

>> Xem thêm: [Cập nhật] Tiêu chuẩn thiết kế nhà hàng 5 sao 2026 mới
6. Tiêu chuẩn Phòng cháy chữa cháy (PCCC)
Đây là tiêu chuẩn khó nhất và thường bị mắc lỗi nhiều nhất của các nhà hàng. Để chạy kịp xu hướng, nhiều chủ nhà hàng đã cắt đi chi phí cho hạng mục Phòng cháy chữa cháy (PCCC). Dựa trên QCVN 06:2022/BXD và các thông tư hướng dẫn mới nhất, cần đảm bảo các yêu cầu dưới đây để nhà hàng được cấp giấy phép hoạt động:
6.1. Lối thoát hiểm
Yếu tố quan trọng nhằm bảo vệ khách hàng và nhân viên khi có sự cố bất ngờ xảy ra. Đối với các thiết kế của nhà hàng, lối thoát hiểm cần đảm bảo những yêu cầu sau:
- Số lượng lối thoát: Các nhà hàng phải có đủ lối thoát hiểm phù hợp với số lượng người có mặt tại cơ sở (tối thiểu 2 cửa thoát hiểm). Mỗi lối thoát hiểm phải đủ rộng và không bị cản trở bởi vật dụng (chiều rộng thông thủy tối thiểu 0,8m).
- Biển chỉ dẫn: Lối thoát hiểm phải có biển chỉ dẫn rõ ràng, sử dụng đèn chiếu sáng, đèn led hoặc phát quang, dễ nhìn thấy trong mọi tình huống.
- Khoảng cách thoát nạn: Khoảng cách từ điểm xa nhất trong mọi không gian nhà hàng đến điểm thoát hiểm phải gần nhất, không được vượt quá giới hạn cho phép 25m đến 40m.
6.2. Hệ thống báo cháy và chữa cháy
Tùy vào quy mô (diện tích, số tầng) mà nhà hàng phải trang bị các hệ thống khác nhau theo TCVN 3890:2023:
- Hệ thống báo cháy tự động: Cần trang bị hệ thống báo cháy tự động, bao gồm các cảm biến khói và nhiệt, nút khẩn cấp và chuông báo cháy được kết nối với trung tâm điều khiển để thông báo cho nhân viên và cơ quan chức năng kịp thời.
- Hệ thống chữa cháy khu vực bếp: Khuyến khích lắp hệ thống chữa cháy bằng hóa chất lỏng dành riêng cho bếp (hệ thống Wet Chemical) để dập tắt đám cháy dầu mỡ ngay lập tức.
- Thiết bị chữa cháy: Phải có đầy đủ các thiết bị chữa cháy như bình chữa cháy xách tay, vòi chữa cháy, hệ thống phun nước tự động, và các thiết bị chữa cháy chuyên dụng khác tùy theo quy mô của nhà hàng.
- Đối với nhà hàng có quy mô lớn: Cần trang bị hệ thống chữa cháy vách tường (họng nước), đảm bảo vòi cứu hỏa đủ độ dài để vươn đến mọi điểm trong nhà hàng.
- Kiểm tra định kỳ: Các thiết bị báo cháy và chữa cháy phải được kiểm tra định kỳ để đảm bảo hoạt động tốt khi cần thiết.
6.3. Vật liệu trang trí nội thất
- Hạn chế vật liệu dễ cháy: Giảm thiểu việc sử dụng các vật liệu dễ cháy như xốp, nhựa hay vải cho trần và vách ngăn. Các thiết kế cần ưu tiên các vật liệu có khả năng chống cháy cao hoặc ít nhất là có chỉ số cháy thấp để hạn chế sự lây lan của lửa.
- Lựa chọn vật liệu chống cháy: Các vật liệu như thạch cao chống cháy, sơn chống cháy hoặc các vật liệu chuyên dụng được chứng nhận chống cháy là sự lựa chọn tối ưu để tạo sự an toàn cho không gian nội thất của nhà hàng.
Thiết kế đẹp là chưa đủ, phải thiết kế ĐÚNG LUẬT và TỐI ƯU VẬN HÀNH. Việc nắm vững các tiêu chuẩn thiết kế nhà hàng không chỉ giúp kiến trúc sư hoàn thiện bản vẽ kỹ thuật mà còn giúp chủ đầu tư bảo vệ được dòng vốn, tránh rủi ro đình chỉ hoạt động sau khi khai trương vì không đạt chuẩn.
H3 Group chúng tôi không chỉ vẽ phối cảnh. Chúng tôi tư vấn giải pháp thiết kế đồng bộ MEP, PCCC và hỗ trợ hồ sơ pháp lý xin phép, giúp chủ đầu tư “Ăn ngon ngủ yên”, cam kết không chỉ tạo ra không gian đẹp mắt, mà còn đảm bảo an toàn tuyệt đối, giúp bạn vượt qua mọi quy trình kiểm tra pháp lý một cách suôn sẻ.
Hãy liên hệ ngay H3 Group qua Hotline/Zalo: 0987.168.132 để được tư vấn chi tiết và sở hữu cho mình bản thiết kế nhà hàng tiêu chuẩn hàng đầu nhé!





